Cadlogic animated people and objects logo

Draft it Help System

The complete Help system for Draft it is available on these pages.

How To The Program Interface
The File Menu The Ribbon
The Draft It Ribbon Architectural Ribbon Page Draw Ribbon Page Modify Ribbon Page Settings Ribbon Page Views & Zoom Ribbon Page Command Specific Ribbons Minimise/Expand the Ribbon
System Toolbar Quick Access Toolbar Command Window Drawing Tabs Layout Explorer Properties Explorer Referenced Drawings Status Bar Symbol Library Explorer
Tutorials
Part 5 - Creating the Elevation

Available in: Architectural

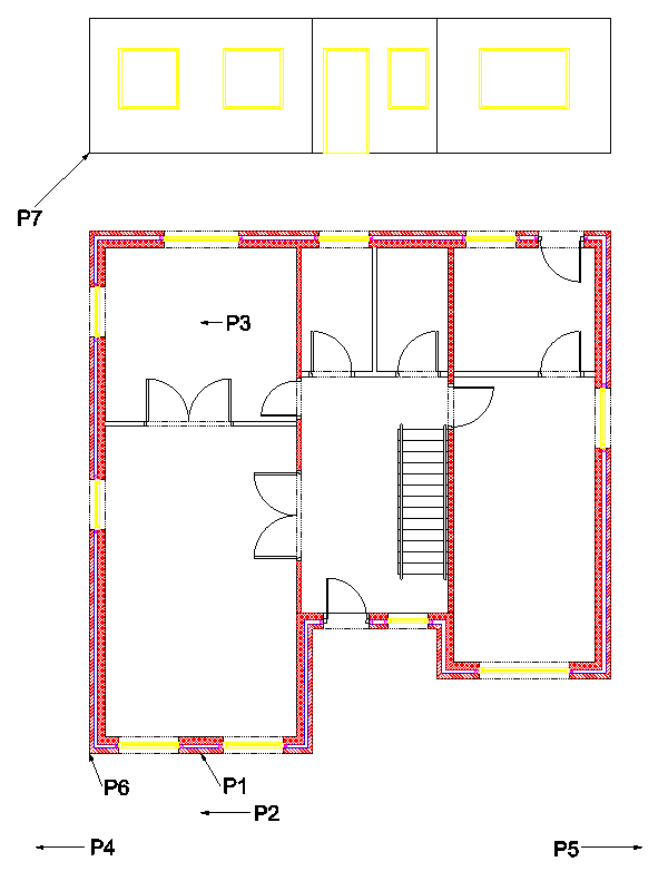
We will now create an front elevation view of the house. As this is a two story building each elevation will be created separately. First we will create the elevation of the ground floor. Select the elevation button Elevation button and the command prompt reads:

first floor elevation placement

Give wall on which elevations will be based:

Simply click on the wall the elevation is to be based, in this case P1 on the ground floor. The command prompt reads:

Give observation point for elevation:

This point defines the viewing position, imagine you are standing at this point (P2) and looking at P1, so move the cursor down from P1 to P2 and click. The command prompt reads:

Give Depth of field:

This point determines how far through the building the command looks for relevant entities. We need to indicate P3, this is past the roof ridge line so the whole roof will be included but not past the rear wall so that the doors and windows in that wall are not included. The command prompt reads:

Give left extent of elevation:

We require our elevation to show the complete extents of the front aspect so click on P4 past the left hand wall. The command prompt reads:

Give right extent of elevation:

Click at P5 past the right hand wall. The command prompt reads:

Give reference point on plan:

This point is the reference point for positioning the elevation on the drawing, click at P6 (Zoom in to ensure the correct point is selected if required). The command prompt reads:

Give position of reference in elevation:

Now click at P7 to position the elevation (you can hold down the shift key key here to assist lining up the this point with the last point P6).

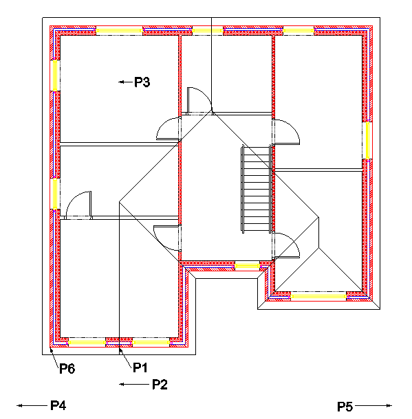
Select the elevation button Elevation button again to create the first floor elevation. The points required to create the elevation of this floor are virtually the same as the ground floor except they are selected on the first floor plan.

second floor elevation pick points

Give wall on which elevations will be based:

Simply click on the wall the elevation is to be based, in this case P1 on the first floor. The command prompt reads:

Give observation point for elevation:

This point defines the viewing position, so move the cursor down from P1 to P2 and click. The command prompt reads:

Give Depth of field

This point determines how far through the building the command looks for relevant entities. Indicate P3. The command prompt reads:

Give left extent of elevation:

We require our elevation to show the complete extents of the front aspect so click on P4 past the left hand wall. The command prompt reads:

Give right extent of elevation:

Click at P5 past the right hand wall. The command prompt reads:

Give reference point on plan:

This point is the reference point for positioning the elevation on the drawing, click at P6 (Zoom in to ensure the correct point is selected if required, especially on this floor to make sure a point on one of the roof lines is not selected). The command prompt reads:

Give position of reference in elevation:

Now to position the elevation simply click on the 'End' Part 5 - Creating the Elevation | Draft It Cad Software Help point at P7.

second floor elevation placement

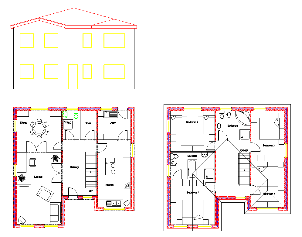
All that remains to do is to delete the floor/ceiling lines between the ground and first floor as shown below (highlighted as blue lines).

remove floor join lines

You can delete the six lines (remember there are co-incident ceiling and a floor lines) one by one. The quicker way is to click at approximately P1 and drag a box to P2, then release the mouse. In doing this a Window selection box has picked all of the entities completely within the box. Now press delete key key.

The house drawing in now complete and should look like the picture below. finished tutorial plan

协和影