Cadlogic animated people and objects logo

Draft it Help System

The complete Help system for Draft it is available on these pages.

How To The Program Interface
The File Menu The Ribbon
The Draft It Ribbon Architectural Ribbon Page Draw Ribbon Page Modify Ribbon Page Settings Ribbon Page Views & Zoom Ribbon Page Command Specific Ribbons Minimise/Expand the Ribbon
System Toolbar Quick Access Toolbar Command Window Drawing Tabs Layout Explorer Properties Explorer Referenced Drawings Status Bar Symbol Library Explorer
Tutorials
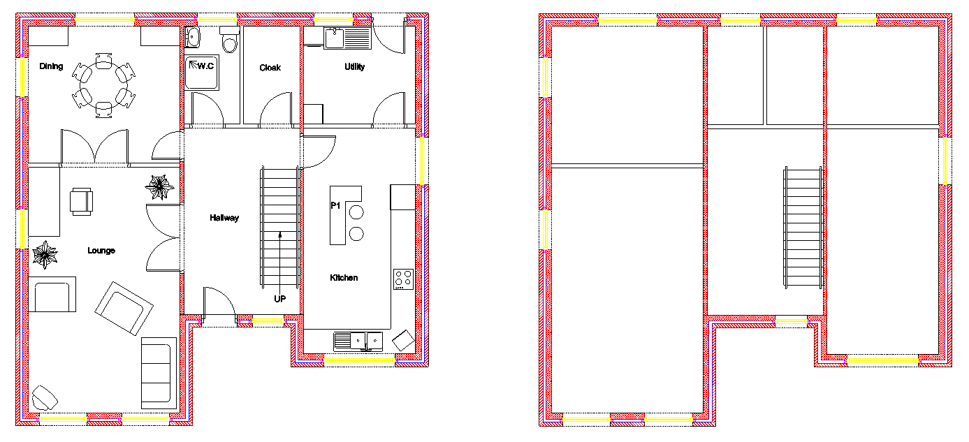
Copy the Ground Floor Details

Available in: Architectural

The easiest way to start the first floor layout is to copy items from the ground floor. One method is to manually pick the items to copy one by one. Another way is to copy the entire ground floor and then delete the items that are not required. A third way and the one we will use is to turn off layers containing items that are not required.

Select the layers button Layers button to display the layers dialog box below. Note the colours for each of the layers maybe different to your settings.

Here we need to turn off the layers that contain information not required on the first floor by removing the tick from the column headed by the show layers icon icon. In the majority of cases the symbol selected from a library will be automatically inserted onto a particular layer. For example, cookers, fridges on the 'appliance' layer, sofas onto the 'furniture' layer etc.

layer settings dialog box

Turn off the appropriate layers and click 'OK', the floor plan will be updated and should as shown below. If some items are on the wrong layer, simply select them and click on the layer they should be on in the layer drop down list. See Change the layer of an item.

Note: If you used the line button Line command to draw the kitchen work surfaces, these will probably still be displayed (depending on the layer they were drawn on). Don't worry about these for now.

select ground floor walls

We will now copy the entities displayed and use them as the basis for the first floor.

Left-click and hold down the mouse button when the cursor is approximately over 'P1' above, then drag the cursor to 'P2' and release the mouse button. This should select all of the entities displayed as shown below.

selected ground floor walls

Now select the copy button copy button and click on the 'End' point end point snap symbol at the lower left corner of the layout, this is the reference point for the copy. Now hold down the shift key key and drag the cursor to the right. Click to position the first floor layout as shown below. You will notice that as we did not copy the doors the walls have automatically been repaired.

copied floor plan

Return to the Layers dialog box and click on the 'Select All' button and all of the layers in the list will be highlighted (blue).

select all layers

Click on one of the empty boxes in the show layers icon column to turn all of the layers on, then click OK.

all layers on plan

Hold down the shift key key and click on each of the 'Kitchen work surface lines'. Once they are all selected press delete key.

协和影